Uffici e Negozi in Vendita a Udine
Zona: NORD OSPEDALE
Classe energetica
EP glnr: 102.77 kwh/m²
Questo ufficio in Vendita si trova nella zona Udine Nord, una delle aree più richieste della città.
Attualmente si presenta libero al rogito, pronto per essere acquistato e utilizzato immediatamente.
L'immobile fa parte di un complesso condominiale aduso direzionale, che garantisce una buona visibilità, ma anche una maggiore privacy grazie alla presenza di professionisti.
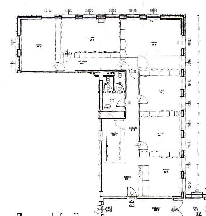
Situato al primo piano di un edificio di quattro piani, senza barriere architettoniche, l'immobile si sviluppa su una superficie totale di 210 metri quadrati, divisi in 7 locali e 2 bagni.
Lo stato di conservazione è ottimo, le stanze interne sono separate da pannelli, che consentono di organizzare gli spazi in modo flessibile e di adattarli alle proprie esigenze.
Una cantina è inclusa nell'acquisto, per avere uno spazio extra di deposito o archiviazione.
Inoltre, è presente un'area di ampio parcheggio, ideale anche per organizzare eventi aziendali.
Il riscaldamento è centralizzato, garantendo un buon risparmio energetico e un'ottima distribuzione del calore in tutti gli ambienti.
Le spese condominiali ammontano a circa 250 euro mensili e includono la gestione e la manutenzione delle aree comuni e dei servizi.
Complessivamente, questo ufficio rappresenta una soluzione ideale per chi è alla ricerca di uno spazio commerciale in una zona strategica di Udine, con ampi e luminosi spazi, parcheggio e dotazioni moderne.
Contattateci per questo immobile commerciale a Udine Nord!
Whapp 329.5935376 -Andrea-
Contattaci
Immobiliare Collini
Cjavecis N. 3/3
Udine (UD)
Telefono 0432486552
Fax 3939229956
Cellulare 3295935376
info@immobiliarecollini.it
Immobili simili
Ultimo aggiornamento 13-12-2022

















